High-Level Sustainability + Design Features

By uniting design excellence with performance, Council Crest demonstrates that homes can be both technically aspirational and deeply personal—offering a model of sustainable living that is enduring, healthy, and inspiring for the future of residential architecture. The home features:

  • Airtight Envelope + Continuous Exterior Insulation

  • Triple-Glazed Passive House-Grade Windows

  • Geothermal Heat Pump

  • Hydronic Radiant Heating and Cooling Floors

  • Heat Recovery Ventilation

  • Solar Panels + Battery Storage

  • 10,000 Gallon Rainwater Harvesting System

Project Partners

RBA Project Team: Risa Boyer, Val Reynolds, Kate Jensen, and Lisa Patterson

Location: Portland, Oregon

Completion Date: May 2024

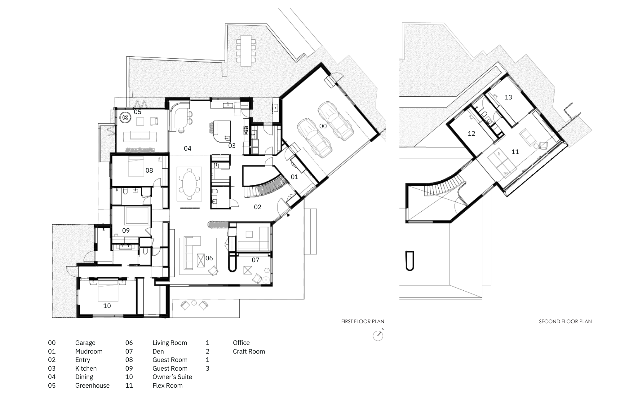
Size: 4,550 sf

Project Partners:

  • Contractor: Don Tankersley & Co.

  • Engineer: Grummel Engineering

  • Landscape Designer: Lilyvilla Gardens

  • Photographer: Jeremy Bittermann; © Jeremy Bittermann / JBSA

  • Landscape Photographer: Shawn Linehan

Council Crest Residence

When the pandemic reshaped the way we think about home, one Portland family decided to reimagine theirs completely. The result is the Council Crest Residence (completed May 2024), a project by Risa Boyer Architecture that blends intimacy, craft, and high performance into a singular vision of residential living.

Perched into the hillside of Portland’s Council Crest neighborhood, the home responds to a deep desire for connection—to each other, to nature, and to the future. The clients, coming from a compact vertical home with little access to the outdoors, envisioned a sanctuary that would be warm, adaptable, and sustainable. What emerged is a dwelling that marries timeless restraint with advanced performance: a home that feels lived-in yet pioneering.

The architecture speaks in textures and light, brick, stained cedar, steel, woven together to convey both strength and warmth. Deep overhangs frame generous glass walls that bring the landscape inside, while intimate interior spaces, scaled for daily rituals rather than open-concept flow, invite quiet and connection. Hand-troweled plaster, oiled white oak, and sculptural details—a curved stair, a built-in planter, a hearth—give the home an enduring sense of craft.

Yet beneath its serene composition lies a network of high-performance systems that make the home a model of resilience. A super-insulated, airtight envelope paired with Passive House–grade glazing, geothermal heat pump, radiant floors, heat recovery ventilation, solar panels, battery storage, and rainwater harvesting work in concert to minimize energy use and carbon footprint. The result is a residence that quietly approaches zero-carbon living while maintaining a sense of grace.

The Council Crest Residence is more than a beautiful family home—it’s a vision of what residential design can be when aesthetics and ethics align. Through thoughtful collaboration and craft, the family has created a dwelling that embodies both comfort and conscience, offering a blueprint for how we might all live—more gently, more beautifully—in the years ahead.

Recipient of AIA Oregon 2025 Architecture Award